Whether you're planning a renovation, filing for compliance, or verifying construction design, we deliver precise and comprehensive as-built documentation tailored to your needs.
STRUCTURAL




ARCHITECTURAL




MEPF




_edited.jpg)
OUR METHOD
We use cutting-edge 3D Laser Scanners to accurately capture millions of measurement points from the site, creating a precise digital twin of the space.
This data is then processed into 2D drawings or 3D BIM models, tailored to your project’s needs.

WHAT IS
3D LASER SCANNING?
3D Laser Scanning is a method of high-accuracy digital survey that uses LiDar Technology to capture millions of measurement points from a site. The data is then put together to create a 3D digital twin of your space - called a pointcloud model.
These pointcloud models are used as the foundation to creating the highly accurate and comprehensive 2D as-built plans and 3D models – giving engineers, architects and designers the data they need to plan and asses their projects more effectively.


How it Works
1. Capture
Our experienced technicians visit the site with
3D Laser Scanners to capture your space – and convert into a millimeter accurate digital twin – also called a pointcloud model.
2. Process
Using the data in these pointcloud models as a foundation our team can create highly accurate and detailed 2D drawings or 3D models.
3. Utilize
Clients can then utilize the output for better planning, analysis, and execution of their projects.

SETTING THE GOLD STANDARD IN AS-BUILT SURVEYING
3D laser scanning sets the gold standard in accuracy, speed, and detail – offering a better and more comprehensive approach to traditional surveying methods
HIGHLY ACCURATE
Captured scans are ±1.9 mm accurate—meaning the margin of error is incredibly small and highly reliable for detailed work.
COMPREHENSIVE
Our 3D laser scanners capture millions of measurement points per scan, documenting every surface and structural detail to deliver truly comprehensive as-built information
FAST
3D Laser Scanners are up 5–20× faster at capturing measurements and producing as-built plans, dramatically reducing documentation time
EASY TO VISUALIZE
Sites are captured and represented in 3D, giving you highly visual data that’s easier to understand at a glance
NON-INVASIVE
Site data is captured with minimal physical contact, allowing a small team of 2–3 people to document even large spaces efficiently

ONE SCAN; MANY DELIVERABLES
3D laser scanning gives you one comprehensive source of truth that can be transformed into any output you need.
​
From 2D as-built plans to 3D models, BIM, and point clouds. The same accurate dataset supports structural, architectural, and MEPF as-builts, along with several technical assessments.
One scan unlocks many deliverables; saving time, minimizing site visits, and ensuring every output is consistent and precise.

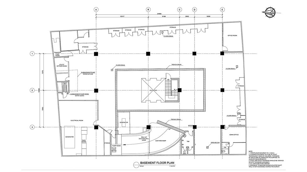
AS-BUILT PLANS
Structural As-built
Architectural As-built
MEPF As-built
OUTPUT FORMATS
2D As-built Drawing
3D As-built Model
Point Cloud Model
3D BIM Model
3D Mesh Model




Surface Analysis
Tank Analysis
Dimensional Surveys
Condition Assessments
Plumbness Analysis
Deformation Analysis
Volumetric Surveys
Countrour Mapping



SPECIAL
APPLICATIONS

"All unanswered questions were addressed. The scans provided information to come up with better solutions"
- General Manager, Ron Technik Inc.
OUR CLIENTS










.jpeg)




FEATURED PROJECTS

.png)

